Rehau Synego

Sistemul de profile SYNEGO asigura o temperatura placuta, un nivel ridicat de confort si siguranta pentru locuinta dumneavoastra: in comparatie cu ferestrele standard actuale, SYNEGO convinge printr-un nivel de izolare termica cu pana la 50% mai mare*. Astfel, veti reduce in mod semnificativ costurile cu incalzirea locuintei si veti experimenta o noua senzatie de bine, la care nu veti mai dori sa renuntati niciodata:

  • Economisirea energiei  datorita nivelului de izolare termica ridicat
  • Zgomot redus  cu cel mai ridicat nivel de izolare fonica
  • Nivel sporit de siguranta  datorita protectiei antiefractie individuale 
  • Design creativ al ferestrelor cu cele peste 220 de culori si cu o multitudine de  forme
  • Ferestre curate, stralucitoare cu suprafete perfect netede datorita formulei unice High Definition Finishing 
  • Impact redus asupra mediului inconjurator datorita procesului de fabricatie ce protejeaza resursele naturale

*Fereastra standard cu Uw = 1,36 W/m²K; SYNEGO cu Uw = 0,66 W/m²K

Design

Puteti alege intre nenumaratele optiuni de design pentru ferestrele dumneavoastra SYNEGO: alb stralucitor, folii decorative imitatie de lemn, in culori calde, cu suprafete structurate sau culori uni moderne.

Alegeti culoarea preferata dintre cele peste 220 de folii decorative disponibile. Puteti opta pentru un aspect diferit la interior si la exterior, de exemplu antracit la exterior si alb clasic la interior.

Specificatii tehnice

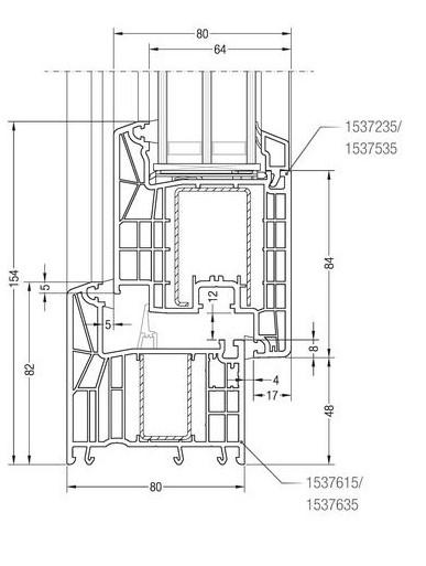
  • Adancime constructiva de 80 mm pentru proportii zvelte
  • inaltimea vizibila redusa de 117 mm, pentru un nivel ridicat de luminozitate
  • Grosimea sticlei de pana la  51 mm,  permite montarea unui geam termoizolator cu 3 foi de sticla
  • 7 camere in rama, 6 camere in canat pentru o izolare optima
  • Garnituri de etansare perimetrale, pentru o protectie fiabila impotriva curentilor de aer si a umezelii
  • Suplimentar, este disponibil un al treilea plan de etansare (garnitura mediana) pentru un plus de izolare termica

Culori standard

Culori standard